We sincerely look forward to your visiting and inquiry .
-
Home>
-
Product>
-
Semi Trailer>
-
Lowbed semi trailer>








Lowbed Trailer Transport Heavy Machine
low boy semi-trailer
usually used to transport container、heavy vehicles、 rail vehicles、 mining machinery、construction machinery and other heavy loads. The lower the center of gravity, the better the stability and safety
Industry attributes
Lead Time | 15-30days |
Supply Capacity | 100 pieces/month |
Place of Origin | China |
Inquire now
- Product Details
- Online Message
- Related products
product details
4 Axles 20-120tons Lowbed Semi Trailer
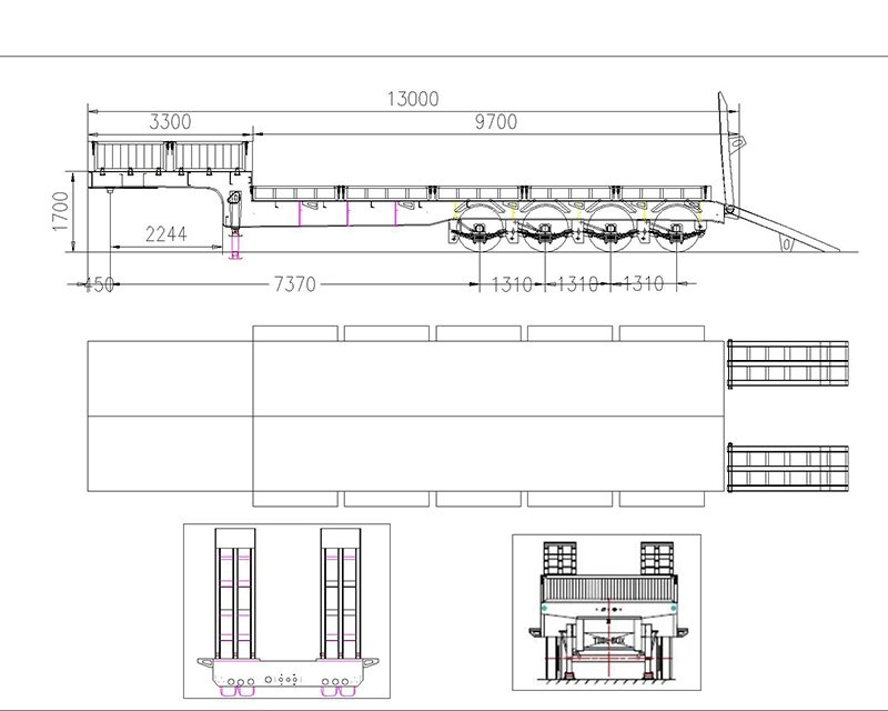
Lowbed semi trailers are normally used to transport heavy vehicles such as buses, rail vehicles, mining machinery, forestry machinery, agricultural machinery such as excavator, bulldozer, loader, paver, crane, and other heavy goods. The lower its center of gravity, the better its stability and safety, and the stronger its ability to transport ultra-high goods and pass overhead obstacles.Lowbed semi trailers usually adopt a four-beam frame. The front section of the frame is gooseneck (the traction pin of the front section of the gooseneck is connected with the traction saddle on the tractor, and the rear end of the gooseneck is connected with the semi trailer frame). The middle section is the trailer platform, which is the lowest part of the frame. The rear is the wheel frame including wheels. When loading mechanical equipment onto a lowbed trailer, it is usually loaded from the rear. that is, move the mechanical equipment over the rear wheel frame or remove the wheels, and then fasten the mechanical equipment on the trailer.
4 Axles 20-120tons Lowbed Semi Trailer images
4 Axles 20-120tons Lowbed Semi Trailer images
4 Axles 20-120tons Lowbed Semi Trailer specification
Lowbed Semi Trailer( customizable and OEM/ODM Service Available) | |
Product Name | 4 axles lowbed semi trailer |
Size(mm) | 14000*3000*1100(customizable) |
Payload | 80000KG (depends on final configuration) |
Plate | 5mm checked plate |
Axles | 4 * 13ton capacity |
(Brand optional) | |
Ladder | Hydraulic ladder or Mechanical spring ladder |
Main beam | Height: 500mm, upper plate is 16mm, middle plate is 8mm, down plate is 18mm ; |
Material is Q345B Steel. | |
Side beam | 250mm I beam; 20mm channel steel ( Material is Q235steel ). |
Bottom Platform | 4mm thickness diamond steel plate |
Suspension | Mechanical suspension (Air suspension optional) |
Leaf spring | 90(W)mmx13(Thickness)mmx10 layers or 100mmx12mmx12 |
(specially intended for overseas markets) | |
Tire | 12R22.5 / 11.00R20 8pcs (Other size optional) |
Rim | 9.00-22.5 / 11.00R20 8pcs (Other size optional) |
Kin pin | 2’’/3.5’’ bolt type |
Landing gear | 28 Ton two speed |
Braking system | Double air chamber ,brake valve,45L air tanks ;ABS optional |
Electrical | LED light , 7 ways ,24V |
Accessory | One tooling box with a set of standard trailer tool |
Painting | 1.Sand blasting processing clean rust. |
2.Coat of anticorrosive primer. | |
3.Coats of finish urethane paint. | |
4.Color as customer choice. | |
Other Descriptions | The cargo platform is lower than others, it is applicable for unsound road condition, and ensuring the stablenessof the |
transportation. | |
Usage | It is applicable for the transportations of the mechanical equipment, large objects, highway construction equipment, large tanks, |
power plant equipment or machine, and all sorts of steel products. | |
Other Specifications | It's concave structured with tyre appeared style, the height of the cargo's carrying platform from ground is 900mm, (ladders |
belong to optional components), with the overall height of 1710 mm. | |
Remark | We can design model according to client's requirement |