We sincerely look forward to your visiting and inquiry .










Car Carrying Semi-trailer
Car Carrying Semi-trailer is with a fence structure design for the loading part , it mainly carries cars, but also can carry vans , commercial vehicle, jeeps and another passenger cars
Industry attributes
Lead Time | 10-30days |
Supply Capacity | 100 pieces/month |
Place of Origin | China |
Inquire now
- Product Details
- Online Message
- Related products
product details
2 Axles 6-8 units Car Carrier Semi Trailer Car Carrying Semi-trailer vehicle transport truck trailers
Wosheng car carrier semi trailer is designed to efficiently transport passenger vehicles via truck. Modern car carrier trailers can be open or enclosed. Most commercial trailers have built-in ramps for loading and off-loading cars, as well as power hydraulics to raise and lower ramps for stand-alone accessibility.
2 Axles 6-8 units Car Carrier Semi Trailer Car Carrying Semi-trailer vehicle transport truck trailers image
2 Axles 6-8 units Car Carrier Semi Trailer Car Carrying Semi-trailer vehicle transport truck trailers image
2 Axles 6-8 units Car Carrier Semi Trailer Car Carrying Semi-trailer vehicle transport truck trailers specification
Product Name | Car Carrier Semi Trailer |
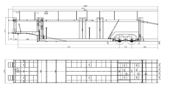
Dimension(Lx W x H)(mm) | 16690x2700x3000 mm (customizable) |
Tare weight (kg) | 9800 (depends on final configuration) |
Max Loading Capacity (kg) | 60000 (customizable) |
Main Beam | Q345B / T700 Steel Height 300mm |
upper plate is 12mm, | |
down plate is 12mm, | |
middle plate is 8mm. (customizable) | |
Type | Two decks, top front deck and rear deck can be lifting and down separately by hydraulic system |
Lifting type of upper floor | Hydraulic and manual lifting mechanism |
Quantity of carried cars | 8 units (4m per car) |
Axles | 13/16/20 Ton. Axle amount optional like 2/3/4axles ..., Axle brand optional like SAF /FUWA/BPW etc |
Tire | 12.00R22.5/315 80R22.5/11.00R20/12.00R20(Brand optional) |
Rim | 9.00-22.5/8.00-20/8.50-20 |
King Pin | 2"(50mm)or3.5"(90mm) JOST or other brand optional |
Suspension | Mechanical Suspension Air Suspension(American or Geman) |
Leaf Spring | 90(w)mm*13/16(thickness)mm*10(layer) |
Landing Gear | 28t Heavy Duty Landing Gear. Brand optional FUWA/JOST etc. |
Brake System | Dual line brake system, Air chamber T30/30, |
3 X 40L gas storage drums | |
ABS System | None or installed as your requirement. |
Electrical system | 1. Voltage: 24v waterproof 2. Receptacle: 7 ways (7 wire harness); LED light ( standard rear light, turn light, rear reflector, |
side light, side reflector etc.) | |
Color | As per customer requirement |